任务1.6 外螺纹车削加工
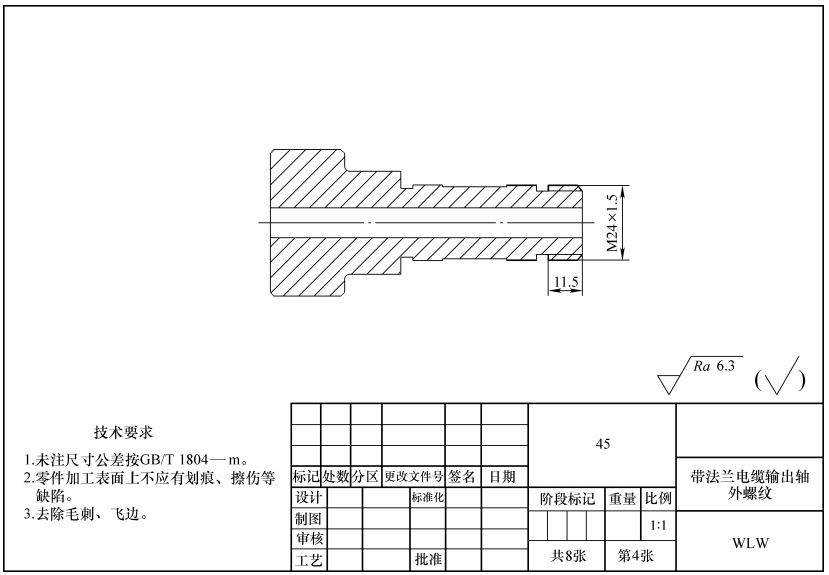
依本任务图纸要求,完成图纸中零件的外螺纹加工,即粗实线轮廓部分,材料为塑料棒或锻件,任务图纸如下:
1、外螺纹加工视频
2、加工带法兰电缆输出轴右端新增编程指令及含义:
(1)加工带法兰电缆输出轴右端外螺纹新增编程指令及含义:
表1 数控车床(GSK980TA)G功能代码列表
| 代码 | 组别 | 意义 | 在程序中使用格式 |
| G92 | 00 | 轮廓螺纹循环指令 | G92X(U)_ Z(W) _ F _ |
(2)数控车床外螺纹编程指令格式及代码含义:
1)外螺纹加工指令G92格式:
G92——螺纹加工循环指令
指令格式:
G92X(U)_ Z(W) _ F _
式中:
U——径向终点坐标;
W——轴向终点坐标;
F——螺纹螺距;
2)带法兰电缆输出轴右端螺纹加工参考程序
| 程序内容 | 说明 | 备注 | |
| O0011 | 程序名(号),0011 | ||
| M03 S600; | 主轴正转,转速600r/min | ||
| G99 T0303; | 转进给,调用3号螺纹刀及刀补值 | 执行该段指令时,必须将刀架移到远离卡盘、工件位置 | |
| G00 X38 Z2; | 快进至循环加工起点,X38 Z2 | ||
| G92 X34 Z-11 F1.5 | 螺纹加工循环切削, X向终点坐标为34,Z向终点坐标为-11;螺纹螺距为1. 5mm; | ||
| X33.5 | 螺纹加工循环切削, X向终点坐标为33.5 | ||
| X33.2 | 螺纹加工循环切削, X向终点坐标为33.2 | ||
| X33.1 | 螺纹加工循环切削, X向终点坐标为33.1 | ||
| X33.05 | 螺纹加工循环切削, X向终点坐标为33.05 | ||
| G00 X100 Z100; | 快速退刀至换刀点X100 Z100 | ||
| M30; | 程序结束并返回程序头 | ||
1、校本教材:详见28-35页
2、网络资源
(1)参考图书
(2)参考网址
精品课:http://resource.jingpinke.com/
爱课程:http://www.icourses.cn/jpk/searchCoursesbyMulti.action
数控技术网: http://www.shukong123.com/
数控网:http://www.shukongwang.com/
(3)拓展知识
3、论文

